U NLV School of Medicine and Clark County Medical Society Town Hall meeting on December 9.
Pictured L to R: UNLV School of Medicine Founding Dean Dr. Barbara Atkinson, Past-President Clark Country Medical Society Dr. Michael Edwards, and NSHE Regent Dr. Mark Doubrava. Drs. Doubrava and Edwards also are UNLV School of Medicine Community Advisory Board members.
Issue 25 - Dec. 15, 2015
Making the Rounds with Founding Dean Barbara Atkinson
Final plans for our students' interim learning space
Friends and Colleagues,               

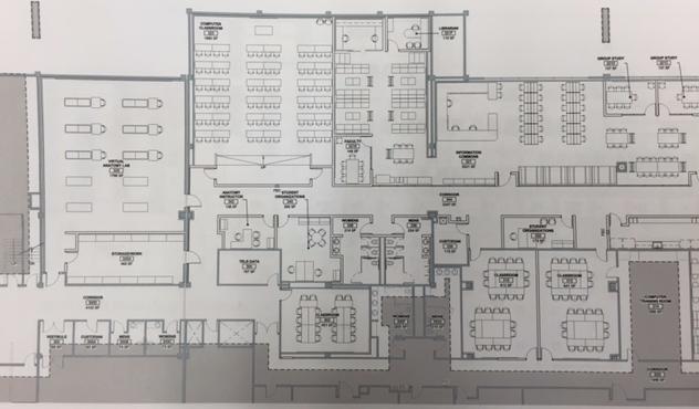
Last week, UNLV School of Medicine leadership and UNLV planning and construction staff met with our architects, Tate Snyder and Kimsey, to make decisions on a set of final plans for our interim teaching space and administrative and faculty offices. It was really exciting to see the future educational space for our medical students come together.
 
One of the highlights was selecting the color scheme and finishes for the student space, which will be charcoal and gray with highlights of lime green and blue. Our medical students will attend classes in this newly designed learning space at the UNLV Shadow Lane Campus located at 1001 Shadow Lane, in the heart of the Las Vegas Medical District, for the first two years. The new space encompasses 18,000 square feet. Facilities will include:
  • Classrooms for microscopy and demonstrations
  • Virtual anatomy laboratory
  • Medical library
  • Small group study rooms
  • Student lounge, gym, and locker area
Students also will attend classes two days a week at the VA Southern Nevada Health Care System brand new, state-of-the-art medical facility in North Vegas.  This is where they will meet with facilitator faculty members for their small group, problem-solving sessions.
 
Administration and faculty offices will be located at the University Medical Center 2040 West Charleston building. We will have offices on the third, fourth, and fifth floors of the building. Our goal is to have this space ready by next summer.
 
After all the planning and discussions about our teaching and office space for the past year it's rewarding to see it take shape. Now, I'm even more excited than ever before to start work on the planning and design of the medical school's permanent building. We are hoping we can get the funding in place in 2016 so we can start construction in 2017.
 
We are making tremendous progress.

Best wishes,
 
Barbara
'Tis the Season of Giving

When I'm out in the community making presentations or attending events many of you have asked me how you can help. We now have two new philanthropic gift funds benefitting our new medical school:

 

The UNLV School of Medicine Fund for Excellence provides us with flexible resources to invest in the medical school's priorities and overall development, which are essential during our start-up phase. 

 

The second opportunity is the UNLV School of Medicine Scholarship Fund,

which will help offset the costs of tuition, books, fees, and other costs of attendance for our medical students.
 

To make a secure, online gift click here. Thanks to everyone who has contributed to our success with their guidance, support, and involvement. It all makes a difference. 

Please contact our Director of Development, Ms. Jeffrie L. Jones, at jeffrie.jones@unlv.edu or at 702-895-0483 for more information.

The University of Nevada, Las Vegas Foundation is a nonprofit organization that raises and manages private funds for the benefit of the University of Nevada, Las Vegas, Tax ID# 94-2790134.

You received our newsletter because you expressed an interest in the UNLV School of Medicine. Please share our news with your colleagues. 
Sign up and follow our progress. If you missed an issue of Rounds you can find them on our website.


F ollow Our Progress