24x7 AEC Introduces Interactive Floor Plan to Revolutionize Home Buying

24x7 AEC is excited to launch its new Interactive Floor Plan (IFP) tool, designed to enhance the home-buying experience. This advanced digital platform allows potential homeowners to customize floor plans with options such as additional rooms, alternate kitchen layouts, and various elevations, providing a realistic preview of their future home.

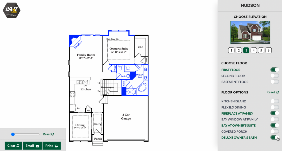
How to Use 24x7 AEC's Interactive Floor Plan Tool in Three Easy Steps

Choose an Elevation: Select the exterior design that suits your style.

Customize Your Floor Plan: Add rooms, alter layouts, and explore different options.

Email/Print Your Brochure: Save your customized plan and share it via email or print a brochure for easy reference.

Introducing our informative video on the Interactive Floor Plan (IFP) tool by 24x7 AEC. Discover how to effortlessly create and visualize your dream home with our intuitive customization options.

Contact us today to integrate this innovative tool and engage your audience like never before with 24x7 AEC!


alefia@24x7aec.com


We look forward to working with you!

24x7 AEC

734-634-9054 | info@24x7aec.com | www.24x7aec.com

Facebook  Instagram  LinkedIn  YouTube